
大唐,文化鼎盛、技艺领先、万国来朝的开元盛世。盛唐建筑气魄宏伟,庄重却不失活力,正是时代精神的完美体现。
本案【大唐书香世家】,为大唐地产“世家系”又一精品力作,室内由DND道恩国际设计倾力打造。

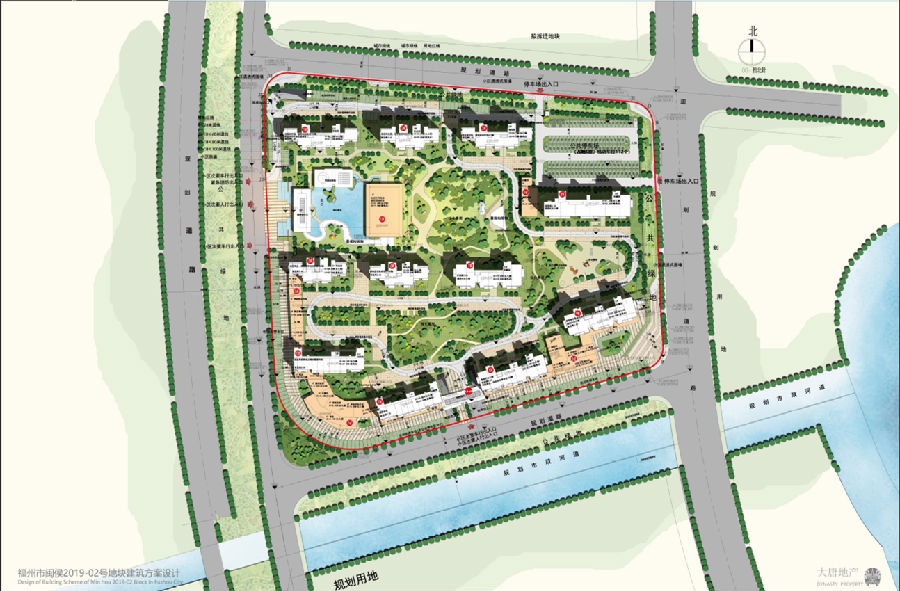
项目规划平面图

区域配套与道路分析
结合大唐世家的新国韵审美,设计师以“大书房”概念对传统销售中心进行创新再造,在延续建筑外观华美唐风的同时,更加注重
人文体验,打造极具雅致有内涵的人文生活美学体验馆。

游园
文雅清幽的国艺园林,完成了从喧嚣市井到世家府邸的自然过渡,访客可沿着燕语莺啼的曲径,闲庭信步,观赏逗趣,一路游园至
大书房。





游园的概念,结合了欣赏与游玩,不仅强调了园林景观的静态美,更关注访客的视觉感和体验感。
翰林轩
翰林,为古代官名,它的由来可追溯至唐朝,集中了当时知识分子中的精英。由科举至翰林,由翰林而朝臣,是科举时代士大夫的
人生理想,是儒家学说中“达则兼济天下”的表现。


步入翰林轩,映入眼帘的是一幅精美的铜雕《江楼夜月图》(张孝友)。设计师以铜雕再现山水国画,东魂西技,将大唐世家的
中式美学基因与现代技艺完美融合,彰显与时俱进的国风大美。朱红衬底既是盛唐经典色系,也成就了今日大唐世家的色彩符号
烙印。



大书房-“檐”下盛世


穿过由仙竹屏风、刺绣团扇、唐诗名作构成的富有诗意的长廊,便来到沙盘展示台。在这个区域,最引人注意的莫过于以“檐”
为灵感的吊灯,华丽而富有雅致韵味。


走廊一侧的青绿山水画作出自明代仇英《桃源仙境图》。艳丽而浓重的色彩融入了文人画所崇尚的主题和笔墨情趣,最能呈现
大唐书香世家的高雅意境。壁灯则采用锤纹工艺,匠心别具,古朴而不失精致。



文人雅趣-会客厅
会客厅的两面主墙分别悬挂《明皇幸蜀图》(明代·仇英)、《竹石图》(清代·郑板桥),秀雅清丽的青山绿水与劲拔挺秀的
墨竹遥相呼应,别有深意。




会客厅与走廊之间以书柜作为隔断。数面气派的落地书柜营造出书盈四壁、翰墨飘香的大书房氛围。此外,一张大书案横亘会客厅
中央,笔墨丹青,文房四宝一应俱全,为整体空间注入更多人文气息。


案上长轴画卷徐徐展开,文房四宝齐全,伴随着浓浓的茶香,从视、触、嗅、听四觉,增强古朴典雅印象。



临窗而望,诗情画意的园林景观一览无遗。移步露台,水石清华的湖光山色赏心悦目。在这里,焚香、听雨、抚琴、候月、莳花
、弈棋...还原轻松、宁静、从容的静雅时光;在这里,园与书房,园与家的亲密关系,满足了文人对“静、雅、逸”的渴望。

会客厅一侧的水吧招待访客。吧台通体大理石打磨而成,台上摆放青松、雅石、陶器、玉雕,皆为文人文雅喜好,既可放松心情,
亦可陶冶情操。


天花板上的“天书”镌刻了《将进酒》全诗,盛唐诗仙李白的豪迈一览无遗。一言“人生得意须尽欢”,一语“天生我材必有用”,
尽显文人气魄。



贵宾室安于一隅,古朴沉稳,低调精致。



大唐地产传承盛唐文化风骨,汲取盛唐美学灵感,开创了独具唐氏风范的新中式空间。于此,人们得以一窥盛世下的文人雅士生活
面貌……
项目名称:大唐书香世家
项目位置:福建省福州市闽侯县
项目范围:销售中心
销售中心面积:580㎡
业主管理团队:大唐地产厦泉城市公司设计部
室内设计&软装陈设:DND道恩国际设计
设计师:王弘涛、卢宜倩、祝雪玲、连樱
摄影师:周志春
室内照片版权:DND道恩国际设计