关于我们
公司简介
发展历史
设计理念
业务流程
客户服务
团队/合作伙伴
游艇定制
查看全部
40ft
30ft sunroof
30ft sport fishing
72ft
30ft
63ft
68ft
78ft
85ft
95ft
40m
68ft
82ft
108
商用船定制
查看全部
70m
18m
30’
42m客船
50m餐饮船
53’
78’
165’
房车定制
查看全部
5米上路房车
7米住宿车
10米住宿车
10米商业车
DND道恩设计
首页
滨水规划
查看全部
双鱼岛碧海银滩
上海宝山码头
浯垵岛
厦门海滨公园
建筑室内
查看全部
特房办公大厦
中交和美新城美式别墅
麒麟·万华城销售中心
七匹狼恒禾湾美售楼处
建发燕郡别墅
建发建阳售楼处
福清韩府别墅
长沙建发美地售楼处
IOI样板房
晋江某私宅别墅
中交和美新城别墅样板房
阳光城·西西里销售中心
建发永安样板房
建发上郡销售中心
海峡收藏品销售中心
建发中央天成样板房
建发中央天成销售中心
建发央座入口门厅
建发上郡样板房
宏汇蝶泉湾会所
资 讯
联系我们
DND道恩软装英伦居家风情系列赏析
2026-03-05 08:47
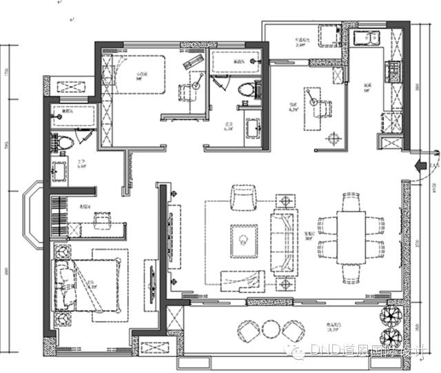
项目名称:禹州.剑桥学苑D3户型样板房
项目面积:120㎡
项目地址:福州
设计师:潘星 雪玲
风格:现代英伦风格
设计时间:2015年6月
DND道恩陈设 平面布置
DND道恩陈设 客、餐厅效果图
DND道恩陈列 主卧效果图
软装陈设方案
闽ICP备13021230号-1
中文
EN